
We provide professional architectural drawings tailored for planning applications, building regulations, and construction purposes. Whether you're extending your home, converting a space, or starting from scratch, we deliver clear, accurate, and compliant designs to help bring your project to life smoothly and successfully.
At the core of our approach is a commitment to thoughtful, practical design and clear, effective technical communication. We create high-quality architectural drawings for a wide range of residential projects, from home extensions and loft conversions to internal reconfigurations and new builds.
Our services cover every stage of the architectural process, including:
• Initial concept design
• Measured surveys
• Planning applications
• Detailed construction drawings for building regulations
Whether you're a homeowner looking to improve your space or a contractor needing precise technical plans, we provide reliable, tailored solutions to help your project move forward with confidence.

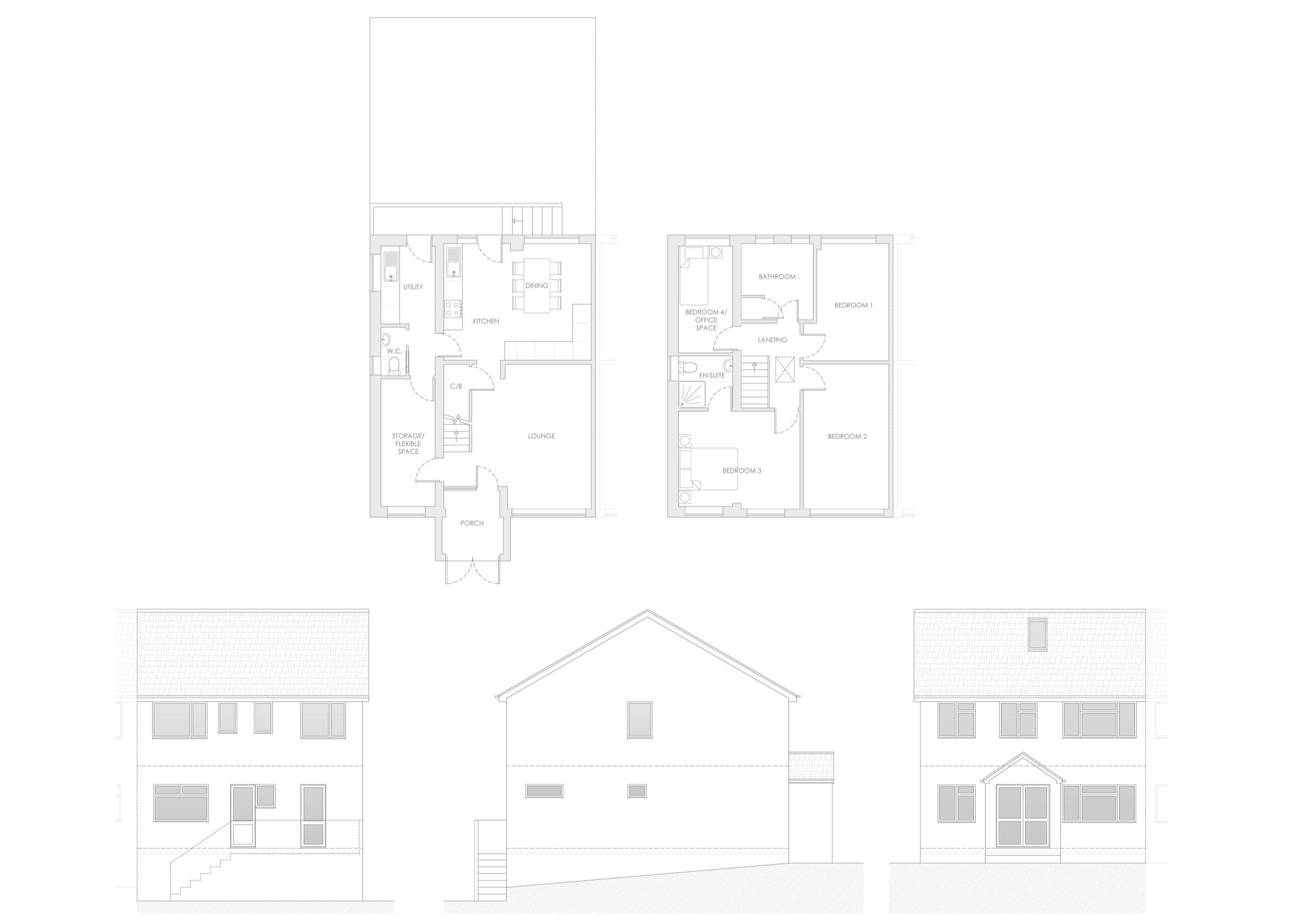
01. Existing & Proposed

02. Existing & Proposed

03. Existing

04. Proposed

05. Before and After

06. Existing

07. Proposed

08. Existing

09. Proposed

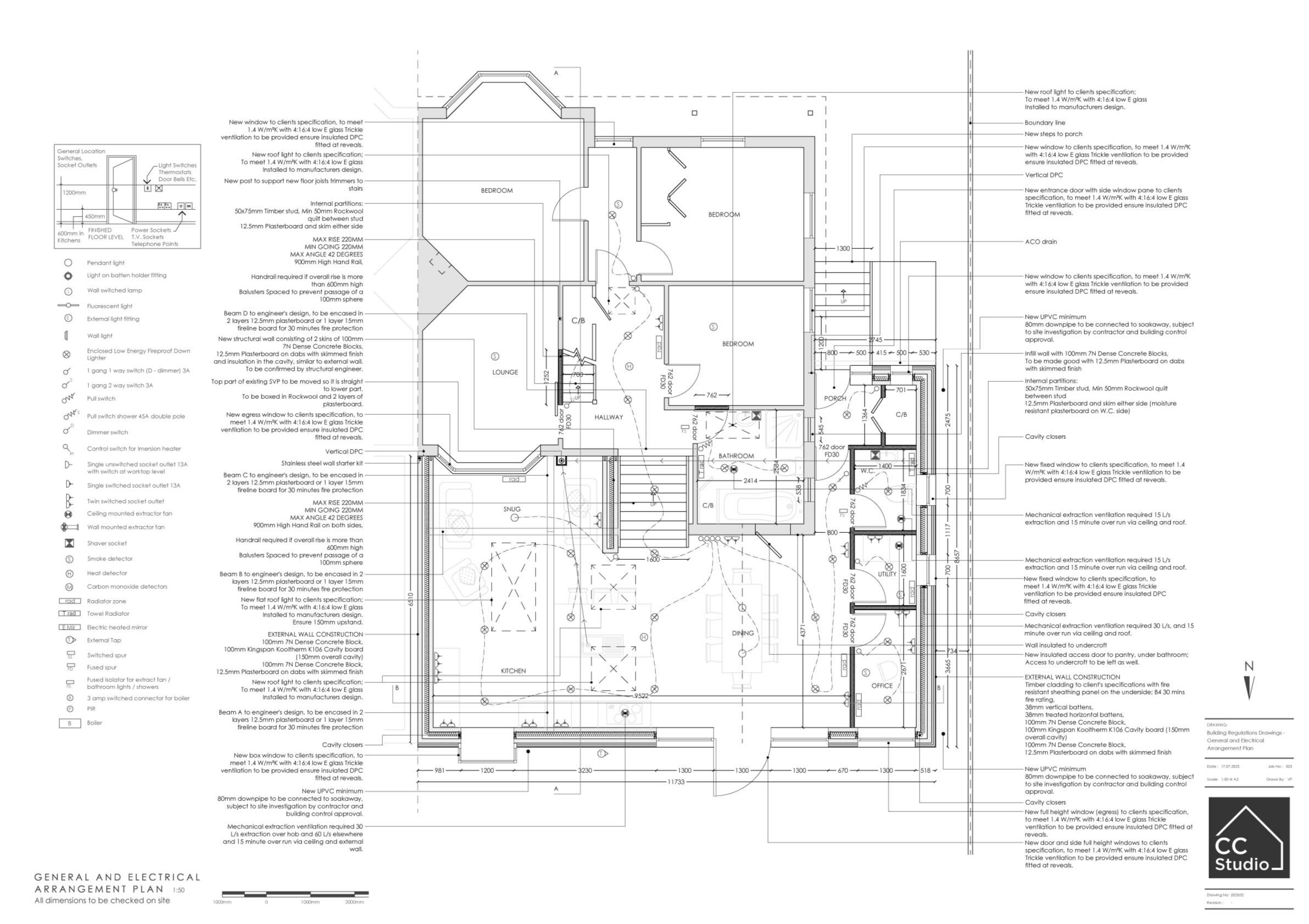
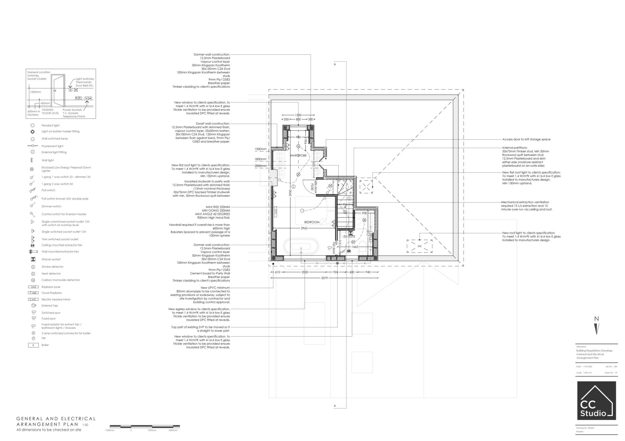
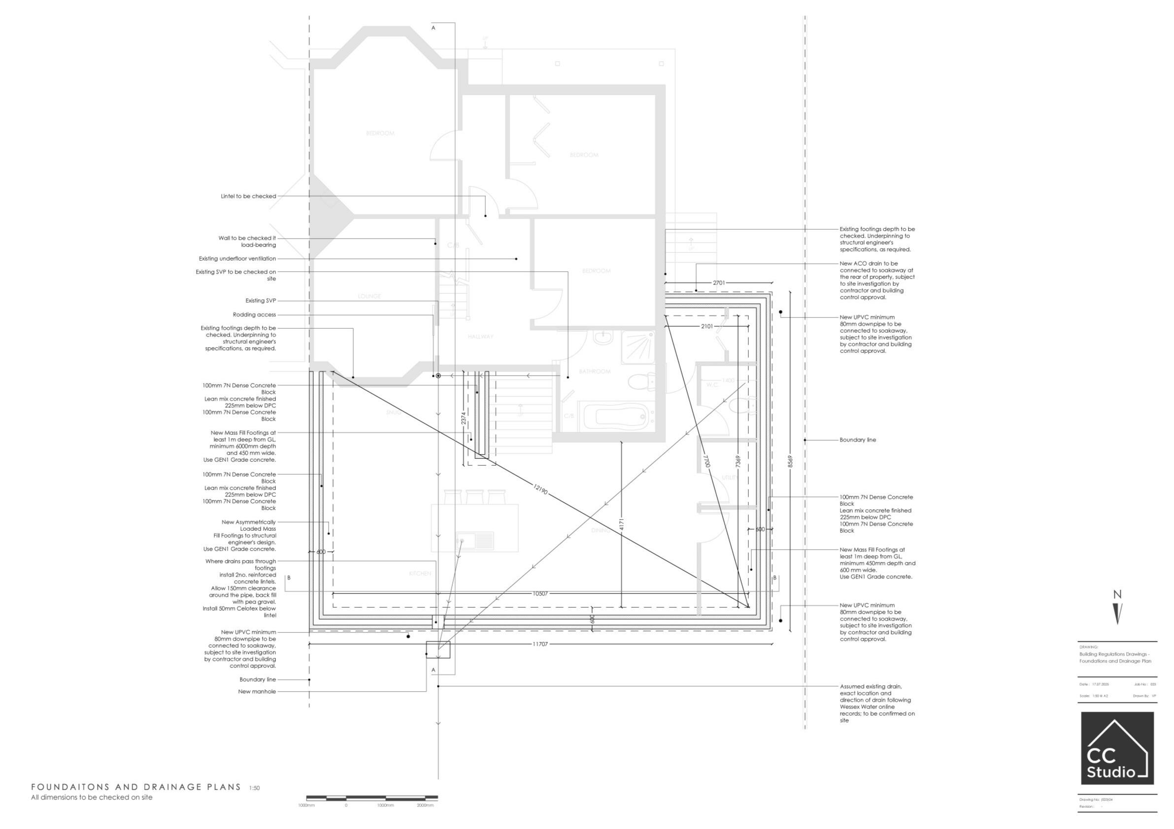
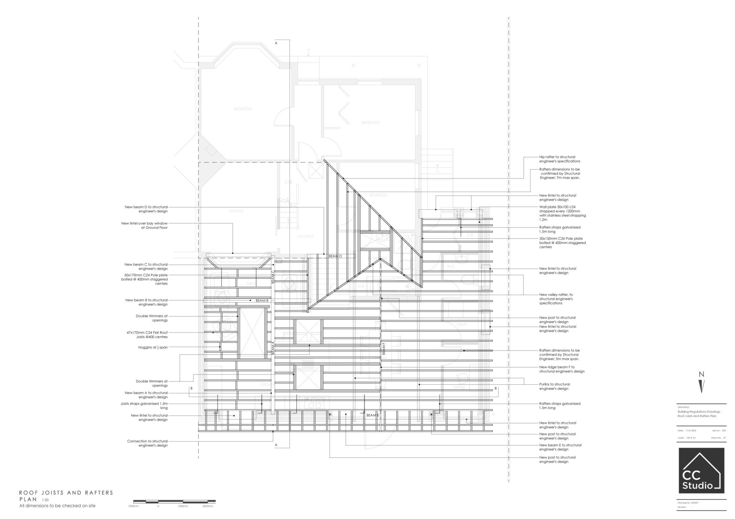
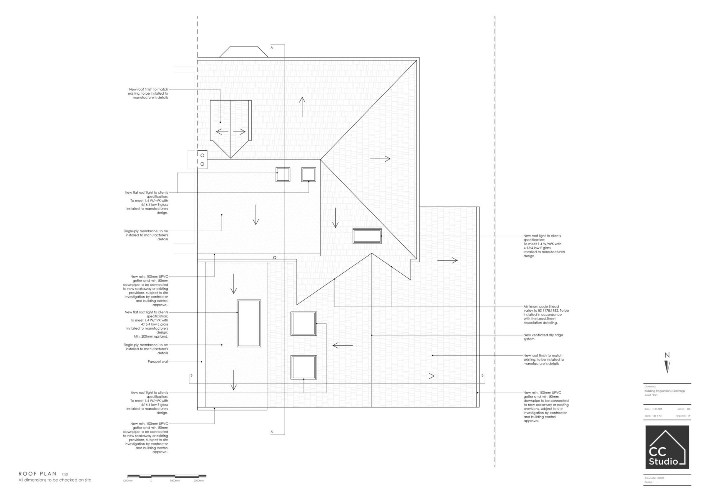
10. Building Regulations

11. Building Regulations

12. Building Regulations

13. Building Regulations

14. Building Regulations

15. Building Regulations

16. Building Regulations

17. Building Regulations
We offer competitive pricing that’s often lower than typical architectural rates, without compromising on quality. By keeping things efficient and client-focused, we’re able to deliver the same (if not better) level of detail, care, and professionalism you’d expect from larger practices, at a more accessible cost.
We take pride in delivering thoughtful design, clear communication, and a smooth process from start to finish. Here's what some of our clients had to say about their experience working with us on a variety of projects:"We couldn’t be happier with the home extension CasaContour Studio designed for us. The space is not only functional but also beautifully integrated with our existing home. The whole process felt seamless thanks to their attention to detail and professionalism."
— Sarah & James M., Bristol"From concept to completion, CasaContour Studio delivered beyond our expectations. The loft conversion has completely transformed our home, adding light, space, and value. Their creative vision and practical knowledge made the entire experience stress-free."
— Martin L., Cardiff"We hired CasaContour Studio for a measured survey of our period property, and we were incredibly impressed by the precision and clarity of the drawings provided. Their expertise gave us confidence to move forward with our renovation plans."
— Diana R., Wiltshire
Have a project in mind or just need some advice? We’d be happy to help.
Reach out to discuss your ideas, get a quote, or schedule a consultation. Email us directly at [email protected] or write to us in the form below, and we’ll get back to you with information and a price list as soon as possible. Alternatively, give us a call at 07591932663.